44
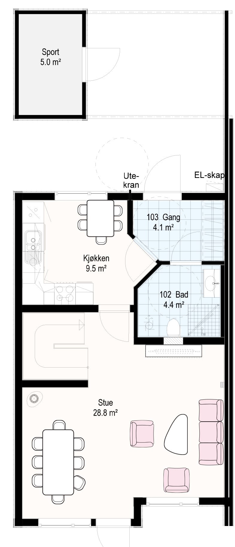
Her får man svært mye bolig for pengene. Carport, sykkelparkering og sportsbod er inkludert. Med 4 soverom og to separate bad er det god plass til hele familien og mulighet for hjemmekontor. To terrasser på 5,2 og hele 18,6 m2 gjør boligen luftig og åpen. Separat stue og kjøkken på samme plan, og en loftsstue gjør at alle i husstanden finner et sted å holde på med sitt. Perfekt for deg med ungdommer i hus.
Som på alle våre andre boliger er også her integrerte hvitevarer inkludert. Flislagte bad og ellers parkett.
Som på alle våre andre boliger er også her integrerte hvitevarer inkludert. Flislagte bad og ellers parkett.
Status
Solgt
Pris
Soverom
4
BRA kvm.
139
BRA-i
133.9
BRA-e
5
Omkost.
44 358
Est. felleskost.
1 668